宁波傅明劳动保护用品有限公司

ELEVATOR DOOR SYSTEM电梯门系统

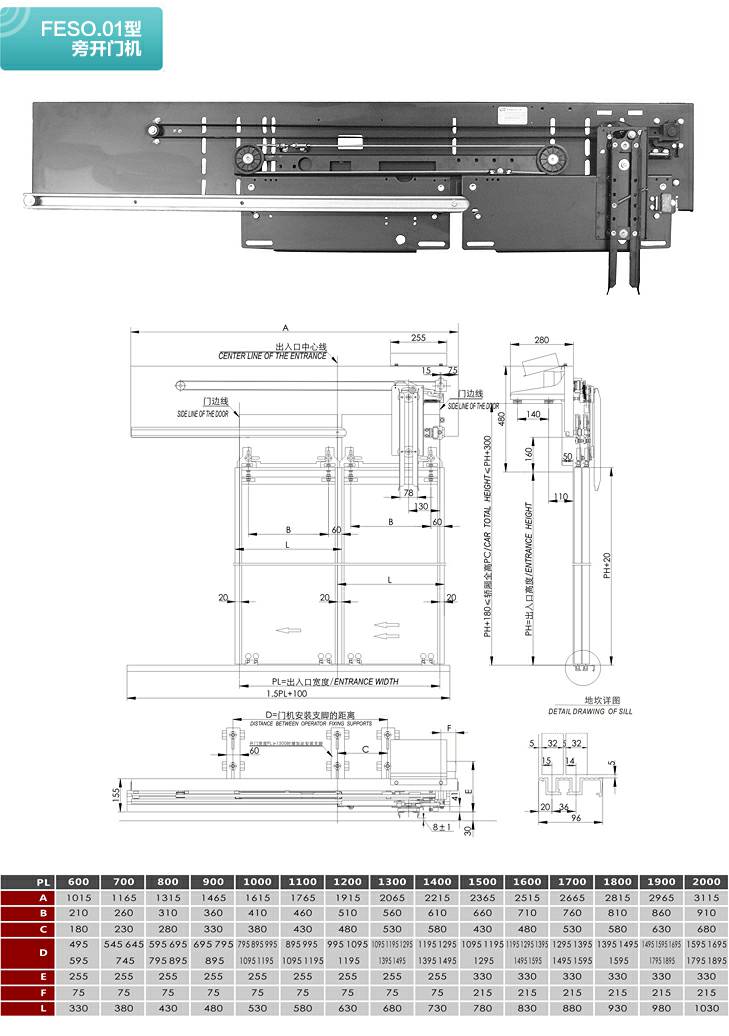
FESO.01型旁开门机